
A riverfront lodge for a musician organized by a 9-square grid and anchored by a central glass wall aligned with the Brazos River, elevated on piers in response to flooding. This project required a 1/4"=1' model, a 1/16"=1' site model and detailed drawings.













Situated along the Brazos River at one of the historic lock and dam sites, this temporary lodge is designed to house a creator for one semester while engaging themes of water, infrastructure, and landscape. The proposal accommodates a music artist and invited guests, combining focused studio space with generous communal areas oriented toward the river.
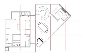
The project is organized through a 9-square ordering system, used to divide and structure the domestic program. Bedrooms, bathrooms, kitchen, pantry, and service spaces occupy defined grid zones, while larger living and gathering spaces expand within and across the grid to create spatial hierarchy. The upstairs studio and billiards space contrast with the more grounded living and dining areas below, producing a layered vertical sequence.
A single central glass wall, aligned precisely with the river’s edge, anchors the entire composition. Visible from nearly all common spaces, this wall establishes a constant visual dialogue with the landscape and serves as the primary experiential axis of the house. The downstairs piano is positioned to face this view, reinforcing the relationship between music, environment, and inspiration. Additional windows and balconies on the opposite façade ensure that all rooms remain visually connected to the river corridor.
Responding to the project’s historical context and the reality of flooding at the unfinished lock sites, the lodge is elevated on concrete piers, allowing water to pass beneath while visually lightening the mass against the topography. The section drawing emphasizes this lifted condition and the relationship between the house and the riverbank.
Circulation is consolidated through a spiral stair that reinforces the grid while introducing dynamic movement between levels . Together, the 9-square order and strong sectional strategy produce a residence that balances formal discipline with openness to landscape, supporting both solitary artistic work and shared occupation.